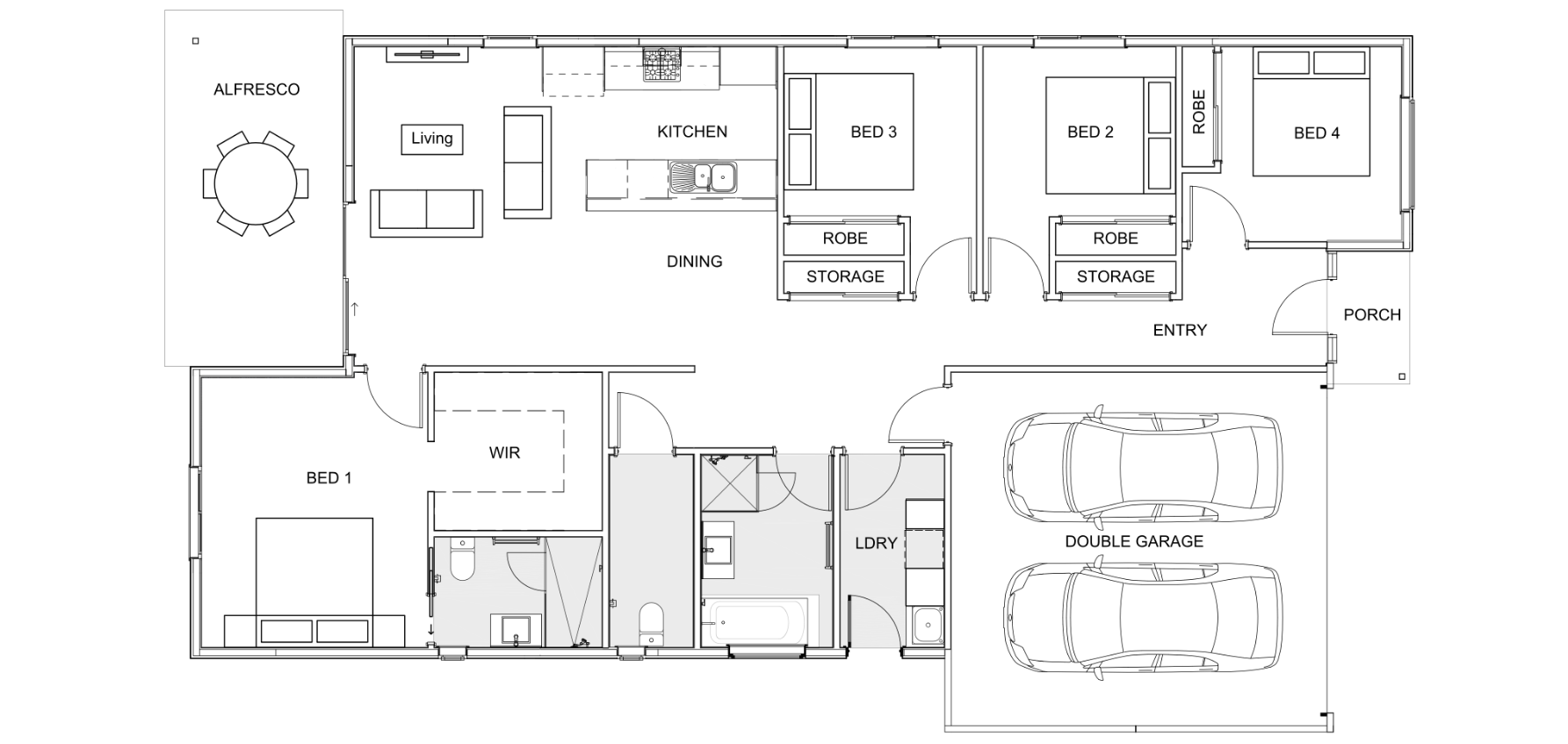
Carmel 210

TOTAL AREA: 210.09m2 | MAIN AREA: 164.04m2 | WIDTH: 12,095 | LENGTH: 20,490

DETAILS

  • Award winning designer curated colour schemes

  • 7+ Star energy rating

  • Engineered Stone benchtops to kitchen and vanities

  • Quality European Appliances 2500mm Ceiling height

  • Timber look hybrid flooring or ceramic tiles

  • Designer tapware

  • Air Conditioning to Master & Living

  • LED light fittings

  • Ceiling fans to all bedrooms

  • Roller Blinds

  • Driveway, Fencing and Landscaping

Oxford Green Brochure
Oxford Green Inclusions
Learn the Difference
Next
Next

Brooklyn 187